Opis
Firma Pan Kominek gwarantuje najwyższą jakość obsługi dzięki 45-letniemu doświadczeniu.
Zapraszamy do zakupu kominka marki ROMOTOP w naszej firmie. Nasi specjaliści palą się do udzielenia Państwu wszelkiej pomocy związanej z doborem odpowiedniego urządzenia. Przy zakupie kominka z montażem gwarantujemy 11-letnią gwarancję bez względu na wybranego producenta wkładu.
Sprawdź koniecznie nasze filmiki i poznaj naszą ognistą ofertę. Pozdrawiam cieplutko.
Prosty kształt i idealna konstrukcja wkładu kominkowego HEAT z otwieraniem drzwiczek na bok oferuje różnorodne zastosowanie. Pozwól sobie na wyjątkowe chwile spędzone w cieple rodzinnego zacisza i odkryj piękno żywych płomieni ognia.
Wkłady kominkowe HEAT przeznaczone są do pracy konwekcyjnej i akumulacyjnej za pomocą kratek wentylacyjnych. Rama drzwi wykonana jest ze specjalnego, sztywnego profilu walcowanego. Szyba drzwiczek posiada nadruk. Wkłady posiadają system CDP – centralne doprowadzenie powietrza zewnętrznego. Komora spalania wyłożona jest cegłami szamotowymi i posiada wychylne palenisko żeliwne z popielnikiem. Dzięki dopływowi powietrza wtórnego, które opływa szybę drzwiczek, nie dochodzi do osadzania zabrudzeń. Regulację dopływu powietrza pierwotnego i wtórnego można prowadzić za pomocą jednego elementu sterującego. Do wkładów kominkowych można dokupić akumulacyjny zestaw boczny oraz górne pierścienie akumulacyjne MAMMOTH, które przedłużą czas promieniowania ciepła o więcej niż 12 h. Innowacyjny system odprowadzania spalin – DOUBLE SPIN, zwiększa skuteczność i ekologiczność wkładu kominkowego.
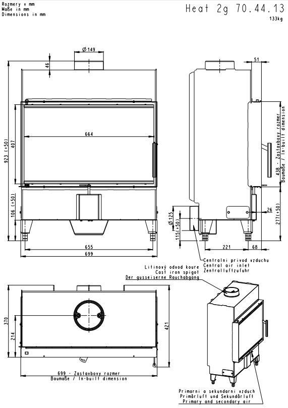
Parametry techniczne:
Wysokość: 882 mm
Szerokość: 592 mm
Głębokość: 370 mm
Wysokość drzwiczek: 407 mm
Szerokość drzwiczek: 554 mm
Waga: 117 kg
Moc regulowana: 2,7-7,0 kW
Średnica wylotu spalin: 150 mm
Średnica króćca spalinowego: 150 mm
Średnica wylotu CDP: 125 mm
Wymagana siła ciągu: 10 Pa
Wydajność: 83,6 %
Spalanie drewna (kg/godz.): 1,3 kg/h
Dane techniczne
| Rodzaj | Powietrzne |
| Materiał | Stal z szamotem |
| Kształt szyby | Prosta |
| Sposób otwierania drzwiczek | Na bok |
| Powietrze z zewnątrz | Tak |
| Układ schładzający | Nie |
| Kominek do rekuperacji | Tak |
| Wylot spalin | Góra |
| Materiał opałowy | Drewno |




