Opis
Firma Pan Kominek gwarantuje najwyższą jakość obsługi dzięki 45-letniemu doświadczeniu.
Zapraszamy do zakupu kominka marki ROMOTOP w naszej firmie. Nasi specjaliści palą się do udzielenia Państwu wszelkiej pomocy związanej z doborem odpowiedniego urządzenia. Przy zakupie kominka z montażem gwarantujemy 11-letnią gwarancję bez względu na wybranego producenta wkładu.
Sprawdź koniecznie nasze filmiki i poznaj naszą ognistą ofertę. Pozdrawiam cieplutko.
Narożne wkłady kominkowe HEAT z otwieraniem drzwiczek na bok są efektownym dodatkiem do wnętrz w nowoczesnym stylu. Pozwól się oczarować przyjemnym ciepłem, które sprawi, że każdy dom stanie się przytulny oraz nada mu ponadczasowy styl oraz wyjątkową atmosferę.
Wkłady kominkowe HEAT przeznaczone są do pracy konwekcyjnej i akumulacyjnej za pomocą kratek wentylacyjnych. Szyba narożna (lewa, prawa) wkładu może być gięta lub dwuczęściowa. Rama drzwi wykonana jest ze specjalnego, sztywnego profilu walcowanego. Szyba drzwiczek posiada nadruk. Wkłady posiadają system CDP – centralne doprowadzenie powietrza zewnętrznego. Komora spalania wyłożona jest cegłami szamotowymi i posiada wychylne palenisko żeliwne z popielnikiem. Dzięki dopływowi powietrza wtórnego, które opływa szybę drzwiczek, nie dochodzi do osadzania zabrudzeń. Regulację dopływu powietrza pierwotnego i wtórnego można prowadzić za pomocą jednego elementu sterującego. Do wkładów kominkowych można dokupić akumulacyjny zestaw boczny oraz górne pierścienie akumulacyjne MAMMOTH, które przedłużą czas promieniowania ciepła o więcej niż 12 h. Innowacyjny system odprowadzania spalin – DOUBLE SPIN, zwiększa skuteczność i ekologiczność wkładu kominkowego.
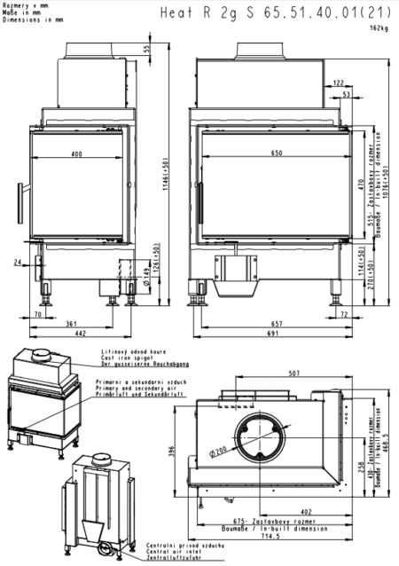
Parametry techniczne:
Wysokość:1146 mm
Szerokość: 714,5 mm
Głębokość: 468,5 mm
Wysokość drzwiczek: 470 mm
Szerokość drzwiczek: 650 mm
Waga: 162 kg
Moc regulowana: 3,5-9,0 kW
Średnica wylotu spalin: 180-250 mm
Średnica króćca spalinowego: 200 mm
Średnica wylotu CDP: 150 mm
Wymagana siła ciągu: 12 Pa
Wydajność: 84,8 %
Spalanie drewna (kg/godz.): 1,9 kg/h
Dane techniczne
| Rodzaj | Powietrzne |
| Materiał | Stal z szamotem |
| Kształt szyby | Narożna |
| Sposób otwierania drzwiczek | Na bok |
| Powietrze z zewnątrz | Tak |
| Układ schładzający | Nie |
| Kominek do rekuperacji | Tak |
| Wylot spalin | Góra |
| Materiał opałowy | Drewno |




