Opis
Firma Pan Kominek gwarantuje najwyższą jakość obsługi dzięki 45-letniemu doświadczeniu.
Zapraszamy do zakupu kominka marki ROMOTOP w naszej firmie. Nasi specjaliści palą się do udzielenia Państwu wszelkiej pomocy związanej z doborem odpowiedniego urządzenia. Przy zakupie kominka z montażem gwarantujemy 11-letnią gwarancję bez względu na wybranego producenta wkładu.
Sprawdź koniecznie nasze filmiki i poznaj naszą ognistą ofertę. Pozdrawiam cieplutko.
Wyjątkowe duże przeszklenie narożne powoduje, że wkłady kominkowe HEAT z wysuwanymi drzwiczkami stają się centralnym punktem każdego pomieszczenia. Czyste linie konstrukcji w połączeniu z precyzyjnym zaokrągleniem narożnika szyby spełniają wymagania dzisiejszego, nowoczesnego wzornictwa.
Wkłady kominkowe HEAT posiadają wielkoformatową, narożnikową szybę z nadrukiem, która zapewnia wyjątkowe wrażenia przy patrzeniu na ogień. Szyba narożna wkładu (lewa, prawa) może być gięta lub dwuczęściowa. Najnowszy system prowadnic – Silent lift zapewni łatwą, cichą i precyzyjną pracę wysuwania drzwiczek. Komora spalania wyłożona jest szamotem; w standardzie jest palenisko bezrusztowe, na życzenie klienta z możliwością wymiany na rusztowe. Wkłady przeznaczone są do pracy konwekcyjnej. Innowacyjny system odprowadzania spalin – DOUBLE SPIN, zwiększa skuteczność i ekologiczność wkładu kominkowego. Dzięki dopływowi powietrza wtórnego, które opływa szybę drzwiczek, nie dochodzi do osadzania zabrudzeń. Regulację dopływu powietrza pierwotnego i wtórnego można prowadzić za pomocą jednego elementu sterującego. Wkłady posiadają system CDP – centralne doprowadzenie powietrza zewnętrznego. W celu bardziej efektywnego spalania do komory doprowadzane jest powietrze tercjalne. Do wkładów kominkowych można dokupić akumulacyjne zestawy boczne lub górne MAMMOTH, które przedłużą czas promieniowania ciepła o więcej niż 12 h.
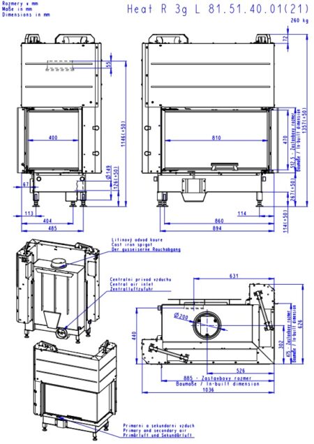
Parametry techniczne:
Wysokość:1357 mm
Szerokość: 1036 mm
Głębokość: 626 mm
Wysokość drzwiczek: 470 mm
Szerokość drzwiczek: 810 mm
Waga: 260 kg
Moc regulowana: 6,0-15,6 kW
Średnica wylotu spalin: 200 mm
Średnica króćca spalinowego: 200 mm
Średnica wylotu CDP: 150 mm
Wymagana siła ciągu: 12 Pa
Wydajność: 83,2 %
Spalanie drewna (kg/godz.): 3,4 kg/h
Dane techniczne
| Rodzaj | Powietrzne |
| Materiał | Stal z szamotem |
| Kształt szyby | Narożna |
| Sposób otwierania drzwiczek | Do góry |
| Powietrze z zewnątrz | Tak |
| Układ schładzający | Nie |
| Kominek do rekuperacji | Tak |
| Wylot spalin | Góra |
| Materiał opałowy | Drewno |




